10 Staughton Road North

Corstorphine, Edinburgh, Midlothian

Offers over £190,000

Reference:
1437
Type:
Residential
Tenure:
Freehold
Status:
Unknown
Size:
0.075 acres

Map

Please note: Locations and addresses are approximate and may not be as accurate as expected.

Planning

Application reference: 18/01184/FULL

Planning status: Detailed Planning Permission

Planning authority: City of Edinburgh Council

Application details:

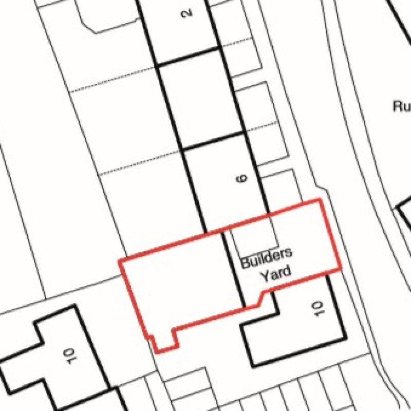
The site lies within the Edinburgh Urban Area and within the Corstorphine Conservation Area. Conservation Area Consent (Ref: 17/03626/CON) was granted unconditionally on 2nd November 2017 for the demolition of the existing buildings on site.

Full Planning Permission was granted on 19th July 2018 subject to 2 Conditions (relating to Site Investigation and Remediation works) for the erection of two contemporary four bed (2,260sqft/210sqm Gross Internal Floor Area) townhouses, with accommodation over four stories. Each property will benefit from 1 off street parking space each, refuse and recycling storage provided on site, and individual private rear gardens.

Due to the scale of development proposed, no Planning Gain has been requested, and there is no S75 Legal Agreement attached to the site or any other phasing/timing restrictions

LandHawk is a comprehensive database of recent and historical planning applications. Designed to deliver powerful, detailed search with greater accuracy and control.

Get instant insight into the status of any area within the country, with a reliable data source that combines 99% of all available planning application data across UK local authorities.

We have exclusively partnered up with LandHawk so you can immediately understand the planning situation of the empty property or site you are looking at. When you sign up and contacted by LandHawk, please say you singed up via LandAttic and you will immediately receive an extended 60 day free trial!

LandHawk Logo

Ownership

LandHawk hosts, manages and displays a digitised version of every land parcel in the UK, as produced by His Majesty's Land Registry (HMLR) and, in the case of Scotland, Registers of Scotland using the INSPIRE data. Each land parcel contains the land registry title deed number and, in the cases of commercial and overseas ownership, directly accessible information for the ownership of that land parcel.

We have exclusively partnered up with LandHawk so you can immediately investigate the ownership of an empty property or derelict site you are looking at. When you sign up and contacted by LandHawk, please say you singed up via LandAttic and you will immediately receive an extended 60 day free trial!

LandHawk Logo