Broomfield

Broomfield, Sanquhar, Dumfries & Galloway

Offers Invited

Reference:
273
Type:
Residential
Tenure:
Freehold
Status:
Available
Size:
4.89 acres

Map

Please note: Locations and addresses are approximate and may not be as accurate as expected.

Planning

Application reference: 14/P/3/0143

Planning status: Outline Planning Permission

Planning authority: Dumfries & Galloway Council

Application details:

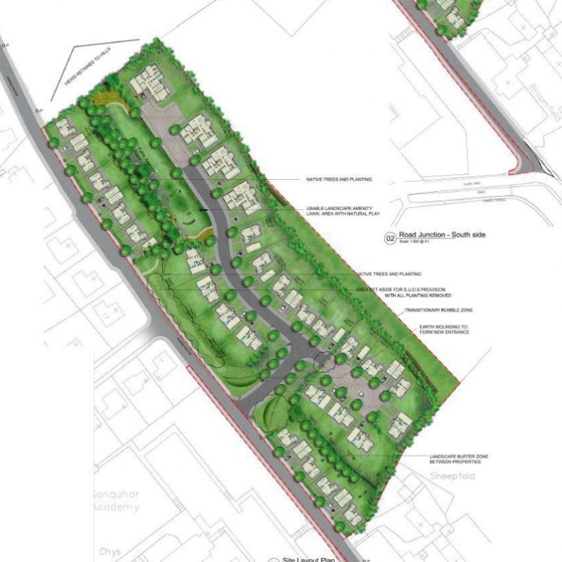
The site benefits from planning permission in principle that was granted on 15th July 2015, for the erection of 29 dwellings and garages, the widening of an existing road, construction of a new road and drainage, formation of amenity space and landscaping and associated works. 

LandHawk is a comprehensive database of recent and historical planning applications. Designed to deliver powerful, detailed search with greater accuracy and control.

Get instant insight into the status of any area within the country, with a reliable data source that combines 99% of all available planning application data across UK local authorities.

We have exclusively partnered up with LandHawk so you can immediately understand the planning situation of the empty property or site you are looking at. When you sign up and contacted by LandHawk, please say you singed up via LandAttic and you will immediately receive an extended 60 day free trial!

LandHawk Logo

Ownership

LandHawk hosts, manages and displays a digitised version of every land parcel in the UK, as produced by His Majesty's Land Registry (HMLR) and, in the case of Scotland, Registers of Scotland using the INSPIRE data. Each land parcel contains the land registry title deed number and, in the cases of commercial and overseas ownership, directly accessible information for the ownership of that land parcel.

We have exclusively partnered up with LandHawk so you can immediately investigate the ownership of an empty property or derelict site you are looking at. When you sign up and contacted by LandHawk, please say you singed up via LandAttic and you will immediately receive an extended 60 day free trial!

LandHawk Logo