Brockley Lane

Brockley, Bristol, Somerset

Offers in excess of £350,000

Reference:
456
Type:
Residential
Tenure:
Freehold
Status:
Sold
Size:
1.26 acres

Map

Please note: Locations and addresses are approximate and may not be as accurate as expected.

Planning

Application reference: 17/P/2240/F

Planning status: Outline Planning Permission

Planning authority: North Somerset Council

Application details:

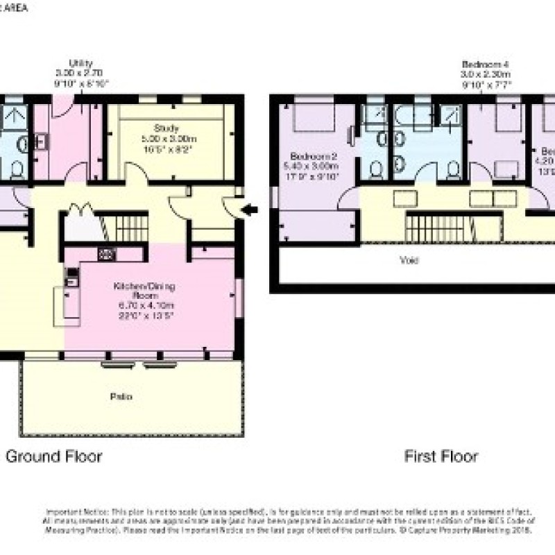
Helios House plots were granted planning permission by North Somerset Council to build two detached high quality low carbon, low energy houses in March 2018, of sustainable design and construction. The elevations are clad in horizontal self-finished larch.

Each house has a floor area of 200 square metres. The accommodation is arranged over two floors with an adaptable open plan living and breakfast area, study, utility room and, guest suite on the ground floor and, three bedrooms, en-suite shower room and family bathroom, and balcony, on the first floor.

LandHawk is a comprehensive database of recent and historical planning applications. Designed to deliver powerful, detailed search with greater accuracy and control.

Get instant insight into the status of any area within the country, with a reliable data source that combines 99% of all available planning application data across UK local authorities.

We have exclusively partnered up with LandHawk so you can immediately understand the planning situation of the empty property or site you are looking at. When you sign up and contacted by LandHawk, please say you singed up via LandAttic and you will immediately receive an extended 60 day free trial!

LandHawk Logo

Ownership

LandHawk hosts, manages and displays a digitised version of every land parcel in the UK, as produced by His Majesty's Land Registry (HMLR) and, in the case of Scotland, Registers of Scotland using the INSPIRE data. Each land parcel contains the land registry title deed number and, in the cases of commercial and overseas ownership, directly accessible information for the ownership of that land parcel.

We have exclusively partnered up with LandHawk so you can immediately investigate the ownership of an empty property or derelict site you are looking at. When you sign up and contacted by LandHawk, please say you singed up via LandAttic and you will immediately receive an extended 60 day free trial!

LandHawk Logo